A Farmhouse Porch Addition in Plainfield
Existing farmhouse showing current side entry
A Home Entry Addition as a Catalyst for Change
A family, who owns a classic Vermont farmhouse set up with a front-house, mid-house, back-house, and barn, hired us to provide architectural design and creative services. They asked us to design a solution to renovate the entry and kitchen area portion of their classic Vermont home. Last summer they recently repainted and did repair work on the outside of their beautiful rambling farmhouse home except for the ailing side porch. This side-porch serves as the primary daily entry into the house. When you enter it, it led into the mudroom with its central wood stove and then into the belly and heart of the home, the kitchen. But it was beyond the end of its useful life needing action soon.
Space to grow and social space near the kitchen
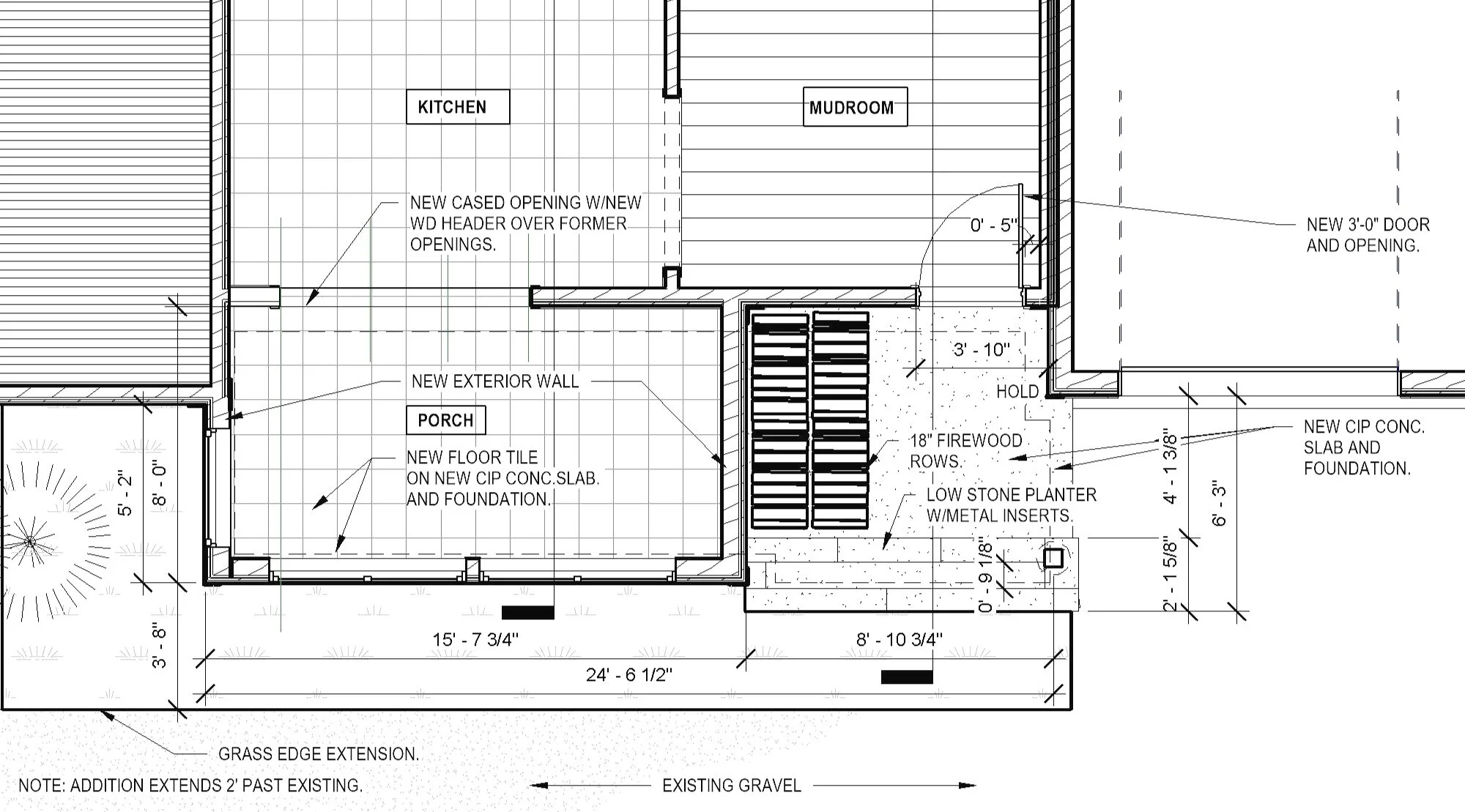
The owners needed a plan to guide the replacement of the old porch with a better design creating a clearer entry experience and access to seasonal firewood storage under the porch cover. They also needed more room inside to expand the kitchen area at a later point. Instead of facing out to the parking area, the expanded porch space needed to face inward towards the kitchen and expanded social space for a growing extended family.
Proposed new porch addition and new entry design
Roof lines and handling ice and snow
With the rooflines of this 1800’s era farmhouse with its telescoping attached additions, reconciling the roofline of this porch addition and renovation proved tricky. The entry porch directly abutted the large barn which regularly dumps snow into this lower roof area as does the main house upper roof. The big question was how to design a new roofline which believably blends into the overall form and character of the existing home massing, window lines, trim, and so on while guiding the snow away from problematic areas.
In Vermont, like other parts of the country with heavy snowfall, designing safe ways for the snow to shed off roofs is important to personal safety and thwarting vehicle damage from falling ice. Those practical safety factors joined with the goal to have the new side entry designed to shield it from view from the nearby busy main road for privacy. Couple those factors with blending in the new addition with the character and existing lines of the home further increased the design challenge.
The home addition & renovation design solution
Balancing all these constraints together, we developed an architectural design we hope will blend the slightly expanded porch area into the historic home vernacular with a modern-spirited addition. We expanded the porch two feet (2’) towards the parking lot and brought the shed roof line up to meet the lower portion of the middle house roof soffit line. This slight expansion allowed for added internal space for informal seating and a dining nook overlooking the action of the kitchen. Grandkids were visiting more often, and they needed space to go in easy sight of their grandparents and others in the kitchen.
Flow and Guiding movement inside and out
We explored two options. One option with a small entry gable along with a shed roof over the open entry area. Another leaving it as a simple shed roof and a less direct entry path. The entry gable option directed visitors to enter directly from the parking area and was very visible from the busy road. The shed only option directed visitors to enter parallel to the side entry resulting in more visual privacy from the main road. This option also shed snow very predictably in front of the side porch and away from the barn side needed to be clear from roof snow for deliveries and truck parking. With the shed only option, the rough framing, and roofline were also easier and more affordable to build and likely would be more long-lasting for the whole house.
Proposed design elevation and sections
Ease of construction, affordability, and energy efficiency
Part of the value add of architects collaborating with homeowners is we weigh a wide variety of interrelated factors together during the design process. Throughout, we continually advocate for our client’s vision, budget, and schedule. We balance the art of place and space making with the practicality of construction, applied building science, and durability. This project, a porch expansion between the main house and large barn with intense snow shed, privacy, and other factors, was no exception.
The clients, one of who is currently semi-retired, intends to fully involve themselves in the construction collaborating with a contractor son-in-law. For an approach like this, it is crucial early in the design process to set up the later building phase for success with all its details and system inter-relationships. This involves listening to the existing home construction DNA looking for cues in roof slopes, building form massing, window sizes, window and door head heights, trim details, and matching existing metal roofing.
Enlarged design floor plan shown porch and entry expansion
Finding the DNA in this way helps blend the new work with the existing home and barn. It is actually really fun for architects to do this! It is like listening to music and being able to understand its structure, meter, rhythm, the color of the sounds, and their emotion.
We also invited the homeowner to explore modern-spirited siding such as corrugated weathering steel along with traditional matching painted clapboards, and a low dry stacked stone wall planter anchoring the wood column supporting the entry corner. The client has enjoyed building stone walls around their home and was looking forward to continuing with more stonework at this new entry.
View of new porch expansion and entry design
Along with these influences, we advocated they (as we do to all residential clients) to consider scheduling a whole-home energy audit to gauge the existing level of energy efficiency and home comfort. Doing so benchmarks the level of airtightness, insulation levels, window performance, and the efficiency of existing heating, and cooling systems. Having this information makes it easier to plan how any new construction or renovation work will positively impact total home energy efficiency, energy savings, and ultimately overall homeowner comfort.
Efficiency Vermont, our statewide energy efficiency utility, offers a variety of residential programs with services and financial incentives to help Vermonters lower their energy bills and create climate-positive design solutions. One in particular for renovations, Home Performance with Energy Star if enrolled in, may qualify the homeowner to save up to 50% of weatherization related costs pending working with a certified EEN contractor.
Low-cost financing may also be available to supplement an overall financing package, especially on larger home renovation projects requiring bank funding. Following through with their program also provides certification information useful when you want to sell your home later, due to a greater value now placed on energy efficiency performance measures with the MLS system used by Vermont Realtors.
Bringing joyfulness into home design
Part of our mission is to listen intently to our clients to learn how, where, and what we ways we can bring joy to them and their family with this project. For this one it was easy. Create more space in the kitchen for the grandkids and their adult kids, other families, and friends to come together. Make it easier and more enjoyable at the side porch to enter their home and gather firewood to feed the woodstove. Design the addition to be straightforward to build and detail while blending into the rambling farmhouse and directing snow to the right places on the ground from the tall barn and upper roofs.
View looking at proposed expanded entry and porch design
A successful local zoning application with our drawings and imagery
We provided them the drawings they needed to apply for a zoning permit which they easily received. The application included a floor plan, building elevations, and sections along with three-dimensional color visuals showing the intended construction and how it matched with the existing. This package of information paved the way for fast approval. The images especially helped local officials easily understand the homeowner’s design intent and how it complies with the zoning and design requirements.
Stay tuned for the next steps
The owner and their team are currently planning the addition, doing estimating and thinking through the construction steps. We are available to them as needed for additional drawings or to answer design, energy efficiency, and design detailing questions. Check back in a couple of months for progress updates. We hope to show construction progress and keep telling this story. Stay tuned!
learn more
Curious about the above project or have questions about the process? Feel free to drop us a line below. We would like very much to hear from you and help answer any questions you have. Just click on the learn more button and it will go to our contact us page.
Back to our residential portfolio
To see more examples of recent home design project work, go check out our project portfolio by clicking on the button below. There you will find a mix of recently completed built residential work, new builds, renovations, or home design projects now in progress. Here in this section of our site, you can also find examples of our growing collection of customizable net-zero ready prototype and spec houses. Our portfolio awaits your visit. Welcome home!
Arocordis Design, a custom home architect and planner, has served Vermont families since 2010. We provide licensed architectural services throughout Central Vermont, including Waterbury, Stowe, Montpelier, Calais and beyond. We also serve the Burke, St. Johnsbury, White River Junction, Tunbridge, and the Woodstock regions. We specialize in modern-inspired home design that connects to Vermont’s past while providing a creative climate positive vision for the future.

