Exterior view from the south east looking towards the shared living area and porches from the units.
Straw-bale Senior Living Duplex: Holland, VT
In 2013, Vermont’s first straw-bale affordable senior housing project was built in Holland, in Vermont's Northeast Kingdom. Becky Masure, then project manager for the affordable housing non-profit, Rural Edge, said, “The Page Holland Senior Housing project helps seniors retain their independence while they remain in Holland close to their extended local community of family and friends.”
Evelyn Page, now deceased, donated land from her family’s nearby farm and funding in memory of her late husband to Rural Edge. Recently, more standardized energy-efficient construction methods have become increasingly expensive for them, often making it difficult to achieve their affordability and long-term performance goals. Here, Rural Edge on this project, tests a new approach and new-old ideas.
Straw bale enclosures appealed to them with their fire resistance, insulation capability of the straw, savings on labor costs, availability of local talent to build this way, carbon footprint reduction, low-embodied energy, and chemical and allergy-free composition. Enduring comfort, durability, and beauty also inspired Rural Edge to try this approach. So they asked the architectural team to consider straw bale as a possibility after reviewing other choices, which soon became the direction for the project.
Birdseye View (via Ward Joyce Design) - Shown prior to changing to a straw-bale exterior wall enclosure.
The design process and team
Detail showing exterior wall under construction with straw-bale and post and beam wood frame.
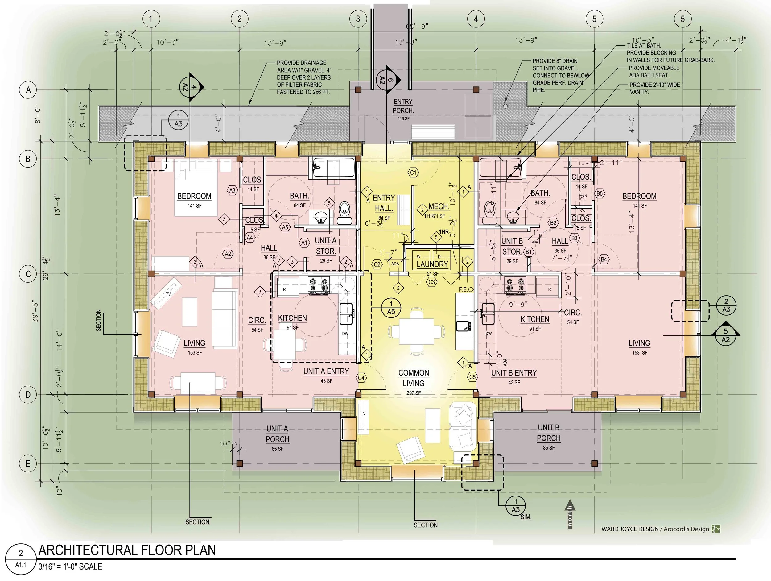
Ward Joyce Design with Arocordis Design as primary design collaborator designed the project, with Ina Hladky providing structural engineering. Arocordis Design also acted as project manager. The team designed two single-bedroom apartments. They shared a common area with a front-entry porch, with separate unit porches facing south. The duplex sits on the top of a hillside site across the road from the former Page Farm homestead and barn. Taking architectural form cues from nearby farm buildings, the bent uplifting roof reaches south towards dramatic rolling farmland vistas. Built on a cost-reducing radiant heated frost-protected concrete slab, the builder installed empty sleeves designed into the slab for future installation of on-site solar-electric PVs. Doing so built in the potential for greater self-reliance and renewable readiness in years to come.
The architects sited the building facing the long way south to north orientation for passive solar heating. Operable awning and casement windows naturally ventilate each unit and common area. Ceiling fans circulate air in the living spaces to distribute passively warmed air in the winter and cooler air from the windows in the summer.
A small parking area to the north serves building residents and visitors with a winding drive leading to nearby Page Road. Eventually, as the site is finished over time, Rural Edge will install and maintain pathways around the building along with a small vegetable garden and edible landscaping to provide fresh food for residents. A possible future arbor as shown in the bird’s eye view may be built to add further exterior living delight.
Uncontrolled moisture is the natural enemy of straw bale construction, so the architects paid close attention to strategies reducing exposure to wind-driven rain and snow. Extensive roof overhangs shed water away from the plaster and stucco walls. A two-foot-high double-stud pony wall forms a base on which the non-structural straw bales rest. The pony wall is cellulose-insulated. Site-crafted crafted straw bales extend up to the underside of an I-joist framed loose-filled cellulose insulated sloping roof clad in gray EPDM. This is a long-lasting rubberized roofing system used in low-slope situations like this.
View of interior living area looking out onto the meadow beyond.
Lee Cooper of Back 2 Basics Builders, the general contractor, built a post and beam frame, with 18 inches of straw bale surrounding it, to support the roof. The builders installed air fins made of ½” homosote, finished with air-sealing tape fit into specially detailed slots in the wood frame helping to reduce heat loss at joints between materials. Multiple rough and finished coats of plaster encapsulate the exterior and interior faces of the straw bale wall enclosure. Natural colored lime coatings and wood finishes were used along with other easy-to-care-for materials like the polished concrete floor warmed by radiant heating. This duplex design is a great example of a simple natural building approach.
New Frameworks Natural Building was the straw bale consultant, with Ben Graham and Deva Racusin working on the project. Ben helped the architects with the unique detailing of the straw bale enclosure system. Deva provided construction administration assistance during the straw bale installation and assisted Lee Cooper with straw bale enclosure construction and related air-sealing work.
Rural Edge obtained certification from Efficiency Vermont for the project as a Vermont Energy Star Home. Efficiency Vermont provided the design team and owner invaluable technical assistance during the design phase to clarify all of the compliance details required to be included in the specifications and drawings. Their service extended into construction as well with site inspections and conducting blower door testing to ensure compliant air-tightness levels were reached. Energy Balance, of Montpelier, Vermont was the energy consultant. They helped early on with developing exterior enclosure design strategies and details.
Interior and exterior design
Affordable builder-grade kitchen cabinets and counters were installed along with higher-performing Tier III energy-efficient appliances. A whisper-lite bathroom fan provided whole-unit exhaust for fresh air. Finishes were kept simple and durable. Energy-efficient lighting was also installed with compact fluorescent fixtures. The straw-bale walls window and door openings were finished with rounded bale edges, removing the need for expensive wood trim and helping to save money on interior finishing. The rounded edges also soften the feel of the interior upping the internal warmth and character of the spaces.
The design team selected an exterior and interior palette of warm harmonious colors to further emphasize the natural underpinnings of the project and its design intent. Generally, we selected darker warmer colors nearer the ground with lighter tones the higher up you go. Warm brown exterior stains, coatings, and door and window finishes all integrate with the warm yellow wall color hand-applied to finish coats of plaster.
View of kitchen along with the warm tones of the polished concrete floor.
Exterior view of building corner and uplifting roof along with flared straw-bale wall with its exterior plaster.
This innovative renewable-ready project offers a natural building way for putting “affordability” back into affordable housing. When entering the building a “Truth” window graces the entry hall revealing the internal straw bale wall system and telling the story of its construction. Time will tell what sort of impact the Page Project will have on Rural Edge’s overall affordability approach and others around the state.
straw-bale relevance to single-family homes
While used here in a residential duplex, this system fits well with homeowners interested in using similar natural building techniques on their projects. Straw-bale construction is well suited to projects of one to two stories in height due to structural limitations. Straw bales can be assembled relatively easily with teams of labor led by builders with expertise in straw-bale techniques. They are easily combined with wood timber-frame or post and beam structures, or more traditional energy-efficient advanced framing wood wall systems.
The straw-bale wall material is readily available here in Vermont, extremely local, and relatively low cost. Their low toxicity and embodied energy construction will last generations helping to reduce your family’s long-term exposure to out-gassing chemicals from more typical building materials, improved fire-resistance, and energy cost predictability. These homes provide peace of mind altogether different from traditional construction with their shifted mindset on natural materials and healthfulness.
The rounded edge of the window sill belies the presence of straw-bales below
If you’d like to learn more about residential design and planning services or how to adapt natural building techniques like straw-bale construction to your project please let us know. We would be happy to help. Click on the learn more button below to send us a message or give us a call.
Want to see more examples of our project portfolio and recent residential work? Click on the button below to return back to that area of our website.
